平面圖則
可視化展示樓棟佈局,輔助選房決策
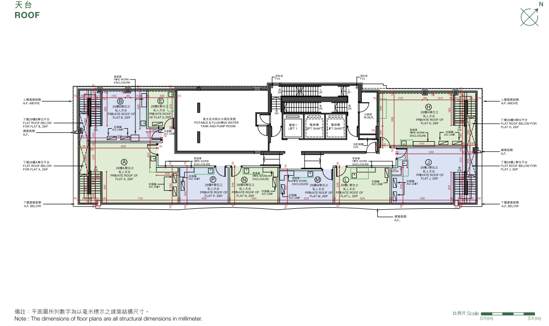
空間說明
樓棟信息:僅 1 座住宅,26 層(無 4/13/14/24 樓),2 梯 16 戶配置,29 樓為高層特式戶(3.5 米層高)
公攤說明:實用率約 78-82%,公攤含電梯廳、設備間,符合核心區住宅常規水平
景觀標註:西北向單位標註「城景視野」,東南向標註「老街景觀」
可視化展示樓棟佈局,輔助選房決策
樓棟信息:僅 1 座住宅,26 層(無 4/13/14/24 樓),2 梯 16 戶配置,29 樓為高層特式戶(3.5 米層高)
公攤說明:實用率約 78-82%,公攤含電梯廳、設備間,符合核心區住宅常規水平
景觀標註:西北向單位標註「城景視野」,東南向標註「老街景觀」